top of page

PATRICKS'S
RESIDENCE
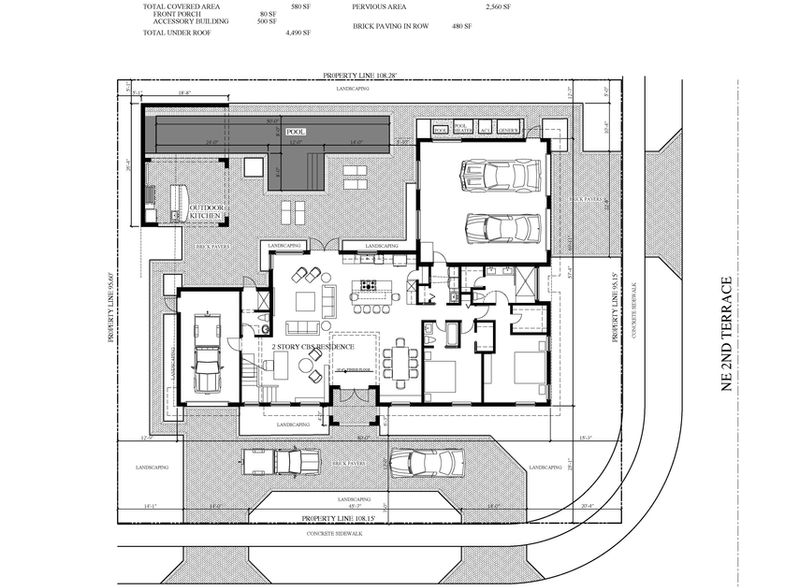
This residential project in Boca Raton aimed to give the client the home of his dreams, while performing as functionally as possible to serve as his businesses Headquarters. The design was inspired by the touches of Art Deco and Miami's modern freshness. The 4 bedroom 3 car garage provides the client with everything he needs to live comfortably and functionally.
Softwares
Revit - AutoCAD - SketchUp
DESIGN PRESENTATION
Documents
Revit

3D Perspectives
Concrete Building | Aerial | Entry | Elevation

bottom of page










































